umbaumaßnahme in einem einfamilienhaus

schwarmstedter straße, hannover-heideviertel

planung und realisierung

2006

planung ansicht 1

planung ansicht 1

planung erdgeschoss

planung erdgeschoss

planung ansicht 2

planung ansicht 2

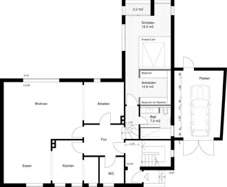
planung obergeschoss

planung obergeschoss