.pd
.profil
.projekte
.publikationen
kontakt / impressum
gewerbliche bauherrn
private bauherrn
denkmalschutz
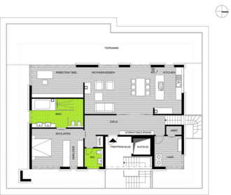
grundrissplanung von zwei etagen in einem mehrfamilienhaus
mozartstrasse, hildesheim
planung