.pd
.profil
.projekte
.publikationen
kontakt / impressum
gewerbliche bauherrn
private bauherrn
denkmalschutz
neubau eines wintergartens
kastanienallee, langenhagen
bauantrag und realisierung
2005
view 1
view 2
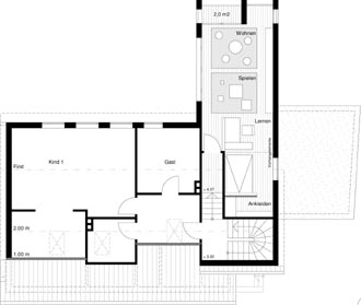
grundrissausschnitt erdgeschoss
planung obergeschoss