.pd
.profil
.projekte
.publikationen
kontakt / impressum
gewerbliche bauherrn
private bauherrn
denkmalschutz
erweiterung eines einfamilienhauses
freihorstfeld, hannover
planung
ansichten
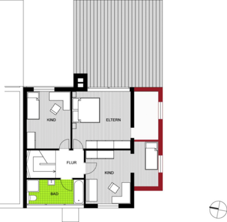
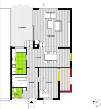
erdgeschoss
dachgeschoss