.pd
.profil
.projekte
.publikationen
kontakt / impressum
gewerbliche bauherrn
private bauherrn
denkmalschutz
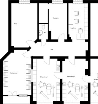
modernisierung und umbau einer zahnarztpraxis
hannover-südstadt
planung
2006
planung grundriss
bestand