neubau eines gastronomiegebäudes

steinriede, garbsen

leistungsphasen 1-4

2005

foto realisiertes objekt

foto realisiertes objekt

bauantrag ansicht

bauantrag ansicht

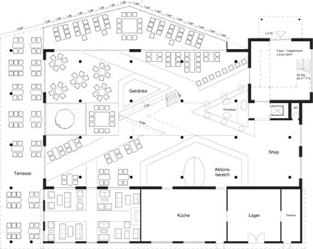
bauantrag grundriss erdgeschoss

bauantrag grundriss erdgeschoss

bauantrag längsschnitt

bauantrag längsschnitt

planungsvariante

planungsvariante