.pd
.profil
.projekte
.publikationen
kontakt / impressum
gewerbliche bauherrn
private bauherrn
denkmalschutz
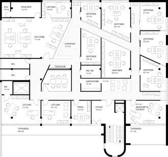
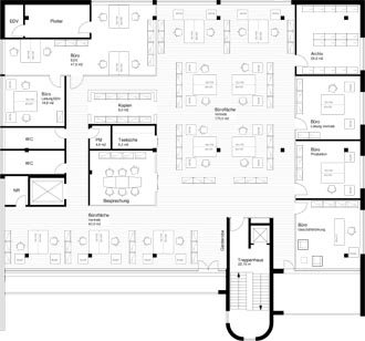
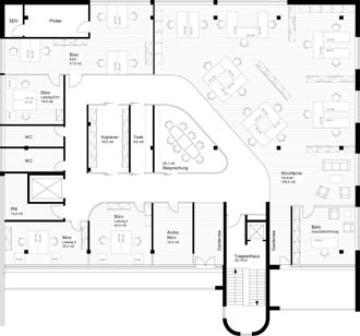
umstrukturierung einer büroeinheit
erhard friedrich verlag gmbh, seelze-velber
planung
2005
animation
planungsvariante
planungsvariante
planungsvariante