.pd
.profil
.projekte
.publikationen
kontakt / impressum
gewerbliche bauherrn
private bauherrn
denkmalschutz
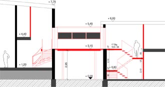
neubau eines verbindungsgangs und sozialbereichs
heinkelstra§e, garbsen
planung und realisierung
2004
foto realisiertes objekt
planung animation
grundriss
schnitt